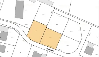
Im Matzener Neubaugebiet „Dorfwiese“ stehen derzeit noch folgende vollerschlossene Baugrundstücke zum Verkauf:
Gemarkung Matzen, Flur 8
- Flurstück 89/18, 527 qm zum Verkaufspreis von 73.780 EUR
- Flurstück 89/19, 552 qm zum Verkaufspreis von 77.280 EUR
Kontakt: Stadtverwaltung Bitburg, Team Liegenschaften,
Tel. 06561 6001-312
E-Mail:
E-Mail:
